
Οι υδρορροές από μεταλλικές κατασκευές είναι ένα κρίσιμο στοιχείο του συστήματος αποχέτευσης στέγης ενός κτιρίου. Η κύρια λειτουργία τους είναι να συλλέγουν το νερό της βροχής από την οροφή, να το κατευθύνουν σε κατακόρυφους σωλήνες και στη συνέχεια να το απορρίπτουν στο υπαίθριο σύστημα αποχέτευσης, εμποδίζοντάς το να διαβρώσει άμεσα τους τοίχους ή τα θεμέλια. Ο σχεδιασμός και η εγκατάσταση του προϊόντος Liweiyuan χαρακτηρίζονται από υψηλή αντοχή και μικρό βάρος, εξασφαλίζοντας ομαλή αποστράγγιση και εξαιρετική αντοχή.
Οι υδρορροές από μεταλλικές κατασκευές είναι ένα κρίσιμο στοιχείο του συστήματος αποχέτευσης στέγης ενός κτιρίου. Η κύρια λειτουργία τους είναι να συλλέγουν το νερό της βροχής από την οροφή, να το κατευθύνουν σε κατακόρυφους σωλήνες και στη συνέχεια να το απορρίπτουν στο υπαίθριο σύστημα αποχέτευσης, εμποδίζοντάς το να διαβρώσει άμεσα τους τοίχους ή τα θεμέλια. Ο σχεδιασμός και η εγκατάσταση του προϊόντος Liweiyuan χαρακτηρίζονται από υψηλή αντοχή και μικρό βάρος, εξασφαλίζοντας ομαλή αποστράγγιση και εξαιρετική αντοχή.
Η υδρορροή από χάλυβα κατασκευής Liweiyuan είναι κατασκευασμένη από ανθεκτικά στη διάβρωση και ανθεκτικά στην κρούση υλικά.
Το προϊόν μας είναι γαλβανισμένο εν θερμώ, προσφέροντας εξαιρετική αντοχή στη διάβρωση, χαμηλό κόστος και μεγάλη διάρκεια ζωής. Διατίθεται σε πάχη 1,5-2,5 mm, είναι κατάλληλο για τις περισσότερες εφαρμογές.
Κατασκευασμένο από ανοξείδωτο χάλυβα, αυτό το προϊόν προσφέρει αντοχή στη διάβρωση και είναι ιδιαίτερα κατάλληλο για παράκτια ή υγρά περιβάλλοντα. Διατίθεται σε πάχη 1,0-2,0 mm, προσφέρει υψηλότερη τιμή αλλά μεγάλη διάρκεια ζωής.
Τα προϊόντα χάλυβα με έγχρωμη επίστρωση βασίζονται σε γαλβανισμένο χάλυβα, επικαλυμμένο με επίστρωση ανθεκτική στις καιρικές συνθήκες, όπως πολυεστέρας ή φθοράνθρακας, τόσο για αντοχή στη διάβρωση όσο και για διακοσμητικά αποτελέσματα. Διατίθενται σε πάχη 1,2-2,0 mm, είναι κατάλληλα για κτίρια που απαιτούν υψηλό επίπεδο αισθητικής έλξης.
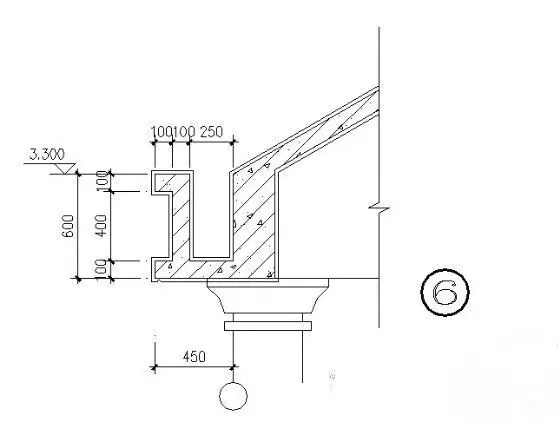
Η δομική μορφή της υδρορροής χαλύβδινων κατασκευών πρέπει να προσαρμοστεί στην κλίση της οροφής και στο σχέδιο της μαρκίζας. Οι συνήθεις τύποι περιλαμβάνουν σχήμα U και σχήμα V. Η διαδικασία εγκατάστασης έχει ως εξής:
Οι υδρορροές από χαλύβδινες κατασκευές χρησιμοποιούν γωνιακούς χαλύβδινους βραχίονες υδρορροής για να τους στερεώσουν στις δοκούς ή στις τεγίδες της μαρκίζας της μεταλλικής κατασκευής. Η απόσταση των βραχιόνων είναι 600-1000 mm για να διασφαλιστεί η ομοιόμορφη κατανομή της πίεσης στην υδρορροή.
Οι έτοιμες υδρορροές έχουν προκαθορισμένο μέγεθος και συνδέονται επιτόπου χρησιμοποιώντας συνδέσμους ή συγκόλληση. Απαιτείται στεγανωτικό στη διασταύρωση μεταξύ της υδρορροής και του καταστρώματος της οροφής.
Μπορούμε να εγκαταστήσουμε ένα φλας πάνω από το κατάστρωμα της οροφής. Το κάτω άκρο της υδρορροής πρέπει να τοποθετηθεί κάτω από το κατάστρωμα της οροφής και να σφραγιστεί με στεγανωτικό. Θα πρέπει να υπάρχουν οπές αποστράγγισης στο κάτω μέρος της υδρορροής, κυρίως για σύνδεση με ανυψωτήρες βρόχινου νερού.
Η διαδικασία κατασκευής των υδρορροών με μεταλλικές κατασκευές περιλαμβάνει κοπή σύμφωνα με τις διαστάσεις του σχεδίου, κάμψη, βαφή, επιθεώρηση τελικού προϊόντος, συσκευασία και αποστολή. Οι υδρορροές από χαλύβδινη δομή της Liweiyuan έχουν σχεδιαστεί και τοποθετηθεί για να εξασφαλίζουν αντοχή στη διάβρωση, ομαλή αποστράγγιση και ανθεκτικότητα, εξασφαλίζοντας αποτελεσματική αποστράγγιση.